Kita Abenteuerwiese Bodenheim - DBN-Architekten

Direkt zum Seiteninhalt

Kita Abenteuerwiese Bodenheim

Foto: Lumen Fotografie

Objektadresse
Leidheckenweg 19, 55294 Bodenheim

Auftraggeber / Bauherr
Ortsgemeinde Bodenheim
Am Dollesplatz 1, 55294 Bodenheim

Projektleiter / Bauleiter / Projektmitarbeiter
Sebastian Bohnekamp, Alona Antonow, Clara Schiepe, Arvid Blume

Leistung
HOAI LPH 1-9

Flächen
BGF 865 m²
BRI 3.933 m³

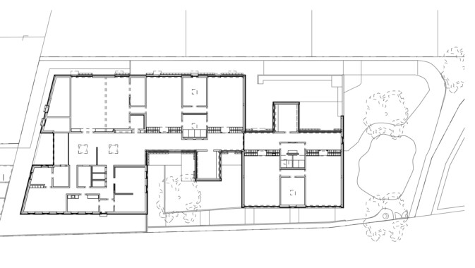
Kurzbeschreibung
Die KiTa Abenteuerwiese am Ortsrand von Bodenheim bietet bis zu 70 Kindern in 4 Gruppen Platz. Der eingeschossige Neubau zoniert geschickt den Außenraum und wird über ein großzügiges Foyer mit direktem Zugang zu einem auch extern nutzbaren Mehrzweckraum betreten. Das Foyer dient den Kindern als Aufenthaltsbereich, für das gemeinsame Essen aus der Frisch-Koch-Küche und zum selber Kochen in der Spielküche. Entlang eines großzügigen Spielflurs wechseln sich die Gruppenbereiche mit geschützten Innenhöfen ab. Die Gartenzimmer lassen sich großzügig in den Freibereich öffnen. Jede Kindergartengruppe erhält somit einen direkten Bezug zum Außenraum.
Foto: Lumen Fotografie
Foto: Lumen Fotografie
Foto: Lumen Fotografie
Foto: Lumen Fotografie
Foto: Lumen Fotografie
Foto: Lumen Fotografie
Foto: Lumen Fotografie
Foto: Lumen Fotografie

Zurück zum Seiteninhalt