Lindenhofschule Groß-Rohrheim - DBN-Architekten

Direkt zum Seiteninhalt

Lindenhofschule Groß-Rohrheim

Foto: Walter Vorjohann

Objektadresse
Beinstraße 22, 68649 Groß-Rohrheim

Auftraggeber / Bauherr
Schule + Gebäudewirtschaft
Eigenbetrieb des Kreises Bergstraße
Gräffstraße 5
64646 Heppenheim

Projektleiter / Bauleiter / Projektmitarbeiter
Jörg Blume, Christian Nasedy, Eva Sarnowski, Eliane Binder, Stefanie Neumann

Leistung
HOAI LPH 1-9

Flächen
BGF Gesamt 2.258 m²
BRI Gesamt 10.363 m³

Kurzbeschreibung
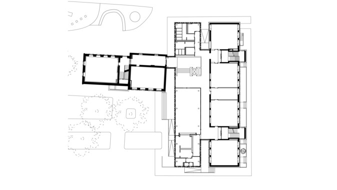
In Groß-Rohrheim entstand ein zweigeschossiger Erweiterungsbau für die Grundschule, welcher eine Mensa, Mehrzweckräume und eine Bibliothek umfasst. Der denkmalgeschützte Altbau aus den 1890er Jahren und der Schusterbau von 1960 wurden energetisch saniert und barrierefrei verbunden. Die Mensa bietet Platz für je 30 SchülerInnen in zwei Schichten und kann darüber hinaus für Veranstaltungen für bis zu 175 Personen bestuhlt werden. Der Neubau enthält differenzierte Räume und neue Toiletten, während die bestehende Bibliothek ins Obergeschoss verlegt wird. Durch die Maßnahmen wurde die Schule an moderne Anforderungen der Ganztagsbetreuung, der Barrierefreiheit und des Brandschutzes angepasst.

Foto: Walter Vorjohann
Foto: Lumen Fotografie
Foto: Lumen Fotografie
Foto: Walter Vorjohann
Foto: Lumen Fotografie
Foto: Lumen Fotografie
Foto: Lumen Fotografie
Foto: Lumen Fotografie
Foto: Lumen Fotografie

Zurück zum Seiteninhalt