Wilhelm-Hauff-Schule Darmstadt Eberstadt - DBN-Architekten

Direkt zum Seiteninhalt

Wilhelm-Hauff-Schule Darmstadt Eberstadt

Foto: Walter Vorjohann

Objektadresse
Stresemannstraße 5, 64297 Darmstadt

Auftraggeber / Bauherr
Wissenschaftsstadt Darmstadt, Eigenbetrieb Immobilienmanagement Darmstadt
Mina-Rees-Straße 12, 64295 Darmstadt

Projektleiter / Bauleiter / Projektmitarbeiter
Christian Nasedy, Tanja Häußer, Xiaoying Charlotte Hu, Julia Brückner, Andreas Hein

Leistung
HOAI LPH 1-9

Flächen
BGF 4.281 m²
BRI 17.900 m³

Kurzbeschreibung
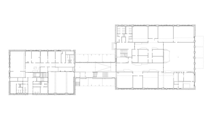
Die Maßnahme umfasst die energetische Sanierung einer 3-zügigen Grundschule bestehend aus Haupt- und Nebengebäude, sowie die Erweiterung um einen 2-geschossigen Verbindungsbau. Die beiden Bestandsgebäude werden saniert, sodass sie den heutigen Anforderungen an Energieeffizienz, Brandschutz und Haustechnik entsprechen. Um die beiden Einzelbaukörper zusammenzubinden - sowohl funktionell als auch architektonisch - wird ein Verbindungsbau hergestellt, der als neuer Haupteingang dient. Er beinhaltet neben einem großzügigen Foyer auch eine neue Treppe sowie einen Aufzug, der die Barrierefreiheit in beiden Gebäudeteilen über alle Geschosse sicherstellt. Zudem gleichen Rampen die unterschiedlichen Höhen der Gebäude aus.
Foto: Walter Vorjohann
Foto: Walter Vorjohann
Foto: Lumen Fotografie
Foto: Lumen Fotografie
Foto: Lumen Fotografie
Foto: Lumen Fotografie
Foto: Lumen Fotografie
Foto Nachher: Walter Vorjohann

Zurück zum Seiteninhalt